06 22 80 36 06 Appelez de la part de Superimmo.com

Vos informations sont transmises directement à l'agent afin qu’il traite votre demande.

Contacter par email
Description

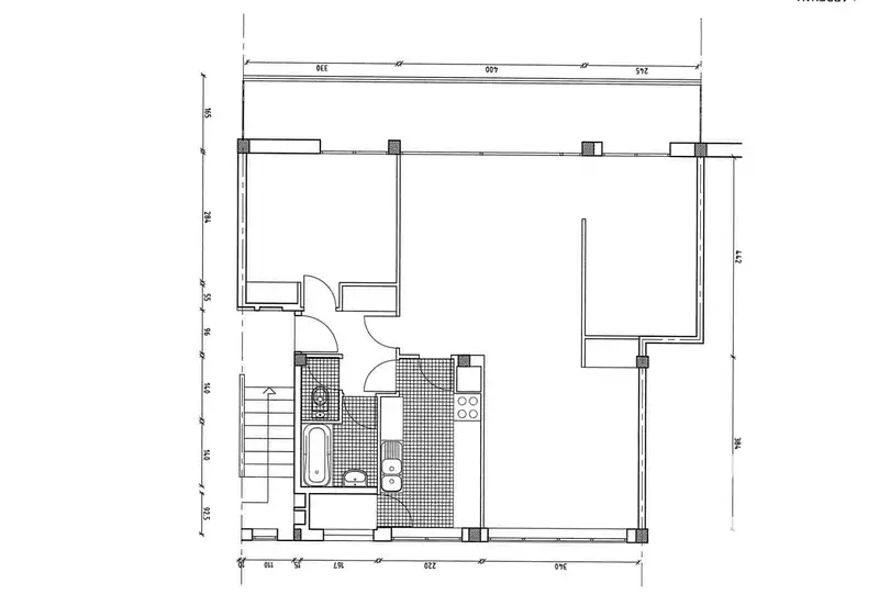
iad France - Lylia Kpotin vous propose: Dans une résidence calme, au cOEur du Parc d'Ardenay, venez découvrir cet appartement comprenant un double séjour plein Sud, deux chambres, une cuisine séparée avec cellier, ainsi qu’une salle d’eau avec WC.
Le balcon est accessible depuis le séjour et une des chambres (aucun vis à vis).
Le bien dispose également d’une cave.
Un box est disponible en option.
Proche de toutes commodités: commerces, écoles, RER.
Idéal pour un couple ou une famille.
La presente annonce immobiliere vise 2 lots situés dans une copropriété de 381 lots au total et ne faisant l'objet d'aucune procédure en cours citée à l'article L. 721-1 du code de la construction et de l'habitation. Montant moyen mensuel de charges déclaré par le vendeur : 286.67€ par mois (soit 3440 € annuel). Honoraires d'agence à la charge du vendeur.
Information d'affichage énergétique sur ce bien : classe ENERGIE D indice 228 et classe CLIMAT D indice 49. Les informations sur les risques auxquels ce bien est exposé, y compris l'obligation légale de débroussaillement, sont disponibles sur le site Géorisques : http://www.georisques.gouv.fr.
La présente annonce immobilière a été rédigée sous la responsabilité éditoriale de Mme Lylia Kpotin mandataire indépendant en immobilier (sans détention de fonds), agent commercial de la SAS I@D France immatriculé au RSAC de Evry-Courcouronnes sous le numéro 911142040, titulaire de la carte de démarchage immobilier pour le compte de la société I@D France SAS.

Publiée le 18/11/2025 - Réf. agence : 1892088 - Réf Superimmo : ANVXZWMR9
Vous rencontrez un problème sur le site ?
Merci de nous signaler le problème
Caractérisques
Prix de vente : 239 000 €Prix au m² : 3 567 € / m²
Charges prévisionnelles : 3 440,04 € / an

Honoraires à la charge du vendeur. Barème d’honoraires : voir le barème

67 m² - 4 pièces - 2 chambresRez-de-chaussée
1 ParkingCave
1 balconAnnée de construction : 1960
GardienChauffage collectif au gaz (radiateurs)
Digicode - InterphoneCopropriété de 1 lots
Bilan énergétique Étiquette climat-énergie : D

Consommation d'énergie

Consommation
228 kWh/m².an
Logement très performantLogement extrêmement consommateur d'énergie

Émission de gaz à effet de serre

Peu d’émissions de CO2
A
B
C
D
E
F
G
49 kgeqCO2/m²/an
Émissions de CO2 très importante

Montant estimé des dépenses annuelles d’énergie pour un usage standard (année(s) de référence : 2023)
Minimum : 1 270 € / an
Maximum : 1 780 € / an

Diagnostics réalisés le 15/11/2025.

Intéressez par ce type de bien ?
Pour recevoir par email les annonces similaires
CRÉER UNE ALERTE
Localisation
DEMANDER L’ADRESSE
Cette annonce vous est proposée par :
9 avis clients
06 22 80 36 06 Appelez de la part de Superimmo.com

Vos informations sont transmises directement à l'agent afin qu’il traite votre demande.

Autres recherches

tous les appartements de 4 pièces à Palaiseau