05 56 00 75 00 Appelez de la part de Superimmo.com

Vos informations sont transmises directement à l'agence afin qu'elle traite votre demande. Voir notre charte des données personnelles.

Contacter par email
Description

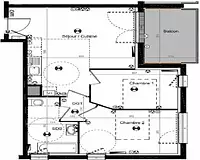
CENON Avenue Thiers - Double exposition pour ce 3 pièces de 53m² composé d'un séjour avec cuisine ouverte de 23.5m² donnant sur une loggia de 8m², de 2 chambres très lumineuse, une salle de bain. Un parking sécurisé au sous-sol complète ce bien. LIBRE

Les informations sur les risques auxquels ce bien est exposé sont disponibles sur le site Géorisques : www.georisques.gouv.fr

Publiée le 06/05/2025 - maj le 06/12/2025 - Réf. agence : GB00206602 - Réf Superimmo : ANVXYGLV3
Vous rencontrez un problème sur le site ?
Merci de nous signaler le problème
Caractérisques
Prix de vente : 194 000 € Prix en baissePrix au m² : 3 660 € / m²
Charges prévisionnelles : 720 € / an

Honoraires à la charge du vendeur. Barème d’honoraires : voir le barème

53 m² - 3 pièces - 2 chambres3ème étage avec ascenseur
Orientation : Est, Sud1 Parking
1 balconChauffage au gaz
1 salle de bain1 wc
Digicode - InterphoneCopropriété de 56 lots
Bilan énergétique Étiquette climat-énergie : B

Consommation d'énergie

Consommation
36 kWh/m².an
Logement très performantLogement extrêmement consommateur d'énergie

Émission de gaz à effet de serre

Peu d’émissions de CO2
A
B
C
D
E
F
G
8 kgeqCO2/m²/an
Émissions de CO2 très importante
Intéressez par ce type de bien ?
Pour recevoir par email les annonces similaires
CRÉER UNE ALERTE
Historique des prix
12 septembre 2025

Baisse de 5,4%

194 000 €
6 mai 2025
205 000 €
Localisation
DEMANDER L’ADRESSE
Cette annonce vous est proposée par :
05 56 00 75 00 Appelez de la part de Superimmo.com

Vos informations sont transmises directement à l'agence afin qu'elle traite votre demande. Voir notre charte des données personnelles.

Autres recherches

tous les appartements de 3 pièces à Cenon