07 70 09 50 61 Appelez de la part de Superimmo.com

Vos informations sont transmises directement à l'agent afin qu’il traite votre demande.

Contacter par email
Description

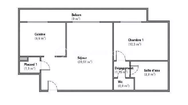
À deux pas des commerces, transports et commodités, découvrez ce bel appartement T2 entièrement refait à neuf, situé au 4ᵉ étage avec ascenseur d'une résidence sécurisée et bien entretenue. L'appartement se compose de : Un séjour lumineux avec sol et peinture neufs Une cuisine moderne entièrement rénovée Une chambre agréable et fonctionnelle Une salle d'eau contemporaine Fenêtres en aluminium neuves équipées de volets roulants électriques Prestations : Résidence sécurisée avec espaces verts et parking Charges mensuelles comprenant : eau froide et chaude, chauffage, entretien des parties communes, espaces verts, parking, assurance et syndic professionnel Aucun travaux à prévoir Atouts : emplacement idéal proche de toutes commodités, rénovation complète, confort moderne, résidence entretenue
Cette annonce référence 303696 vous est présentée par votre agent commercial BSK Immobilier HAKIMA MOKEDDEM (EI) immatriculé au RSAC de MEAUX (77100) sous le numéro 82753070000026.
Prix du bien : 156 000,00 €
Les honoraires d'agence sont à la charge du vendeur.
A propos de la copropriété :
Pas de procédure en cours.
Nombre de lots : 3
Charges prévisionnelles annuelles : 3 337,00 €
A propos des performances énergétiques :
Date de réalisation du diagnostic énergétique : 16/09/2025
Score DPE : 131 kWhEP/m²/an
Score GES : 38 kgepCO2/m²/an
Montant estimé des dépenses annuelles d'énergie pour un usage standard : entre 690.00 € et 980.00 € par an. Prix moyens des énergies indexés sur l'année 2023 (abonnements compris).
Les informations sur les risques auxquels ce bien est exposé sont disponibles sur le site Géorisques : www.georisques.gouv.fr

Publiée le 20/09/2025 - maj le 27/11/2025 - Réf. agence : 303696 - Réf Superimmo : ANVXZI3N2
Vous rencontrez un problème sur le site ?
Merci de nous signaler le problème
Caractérisques
Prix de vente : 156 000 € Prix en baissePrix au m² : 3 545 € / m²
Charges prévisionnelles : 3 337 € / an

Honoraires à la charge du vendeur. Barème d’honoraires : voir le barème

44 m² - 2 pièces - 1 chambreÉtage 4/7
Orientation : Nord, Nord-Ouest, Est, OuestParking extérieur
1 caveBalcon
Année de construction : 19701 salle d'eau
Copropriété de 3 lots
Bilan énergétique Étiquette climat-énergie : D

Consommation d'énergie

Consommation
131 kWh/m².an
Logement très performantLogement extrêmement consommateur d'énergie

Émission de gaz à effet de serre

Peu d’émissions de CO2
A
B
C
D
E
F
G
38 kgeqCO2/m²/an
Émissions de CO2 très importante

Montant estimé des dépenses annuelles d’énergie pour un usage standard (année(s) de référence : 2023)
Minimum : 690 € / an
Maximum : 980 € / an

Diagnostics réalisés le 16/09/2025.

Intéressez par ce type de bien ?
Pour recevoir par email les annonces similaires
CRÉER UNE ALERTE
Historique des prix
6 octobre 2025

Baisse de 6,6%

156 000 €
20 septembre 2025
167 000 €
Localisation
DEMANDER L’ADRESSE
Cette annonce vous est proposée par :
104 avis clients
07 70 09 50 61 Appelez de la part de Superimmo.com

Vos informations sont transmises directement à l'agent afin qu’il traite votre demande.

Autres recherches

tous les appartements de 2 pièces à Les Pavillons-sous-Bois