07 65 65 26 26 Appelez de la part de Superimmo.com

Vos informations sont transmises directement à l'agent afin qu’il traite votre demande.

Contacter par email
Description

iad France - Laurent Zerbib vous propose: *** EXCLUSIVITÉ *** Dans le secteur très recherché du Marché d'Aligre, au 4 rue d'Aligre, sur cour et au calme absolu, 2 pièces de 34,53 m² (34,40 m² Carrez), dans copropriété bien entretenue de 1830. ***
On aime le charme authentique de cet appartement sur cour, judicieusement agencé, au 2e étage (sur 4) sans ascenseur, sans nuisances sonores de circulation ou du marché, dans une copropriété bien entretenue, aux parties communes rénovées (façade principale de l'immeuble également ravalée).
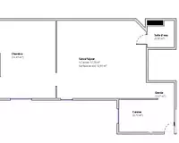
Ce bien, sans aucune perte de place, se répartit en :
- Un espace entrée/cuisine de 7,29 m².
- Un salon de 12,91 m².
- Une chambre de 12,41 m².
- Une salle d'eau avec WC classiques de 1,92 m² .
+ Une cave au sous-sol de 4,67 m².
_______________________________________________
Les 2 pièces étant de superficie équivalente, il est possible d'inverser facilement leur usage en salon ou en chambre, au choix des goûts et souhaits.
_______________________________________________
Depuis l'appartement, vous êtes à pied à 1 min du marché couvert Beauvau, à 4 min. de la rue du Faubourg St-Antoine, du square Trousseau ou de la Coulée Verte, à 5 min de la Gare de Lyon ou encore à 11 min de la place de la Bastille.
Tout proche, vous trouverez de très nombreux commerces et restaurants et bien sûr le célèbre Marché d'Aligre.
Concernant les transports, vous êtes à 4 minutes à pied des métros Gare de Lyon et Ledru-Rollin sans oublier les nombreuses lignes de bus alentours (29, 46, 57, 61, 69, 76, 86).
Charges de copropriété : 175 Eur. mensuels INCLUANT chauffage et eau chaude collectifs.
Taxe Foncière 2025 : 795 Eur.
Local vélos dans l'immeuble.
Fibre Optique.
_______________________________________________
Une belle opportunité pour cette exclusivité dans ce secteur très recherché, avec un indice DPE classé E (diagnostic 2025).
_______________________________________________
4 photos de l'annonce sont des simulations 3D vous proposant une suggestion d'aménagement ou d'amélioration des pièces repensées et tenant compte des volumes réels.
La presente annonce immobiliere vise 2 lots situés dans une copropriété de 65 lots au total et ne faisant l'objet d'aucune procédure en cours citée à l'article L. 721-1 du code de la construction et de l'habitation. Montant moyen mensuel de charges déclaré par le vendeur : 175€ par mois (soit 2100 € annuel). Honoraires d'agence à la charge de l'acquéreur. Prix honoraires inclus : 340000 euros. Prix hors honoraires : 331000 euros. Honoraires TTC à la charge de l'acquéreur (2,72% du prix du bien hors honoraires) : 9000 euros.
Information d'affichage énergétique sur ce bien : classe ENERGIE E indice 307 et classe CLIMAT E indice 66. Les informations sur les risques auxquels ce bien est exposé, y compris l'obligation légale de débroussaillement, sont disponibles sur le site Géorisques : http://www.georisques.gouv.fr.
La présente annonce immobilière a été rédigée sous la responsabilité éditoriale de M Laurent Zerbib mandataire indépendant en immobilier (sans détention de fonds), agent commercial de la SAS I@D France immatriculé au RSAC de nanterre sous le numéro 850605676, titulaire de la carte de démarchage immobilier pour le compte de la société I@D France SAS.

Publiée le 03/11/2025 - maj le 18/11/2025 - Réf. agence : 1881232 - Réf Superimmo : ANVXZSZ1T
Vous rencontrez un problème sur le site ?
Merci de nous signaler le problème
Caractérisques
Prix de vente : 340 000 €Prix au m² : 9 714 € / m²
Charges prévisionnelles : 2 100 € / an

Honoraires à la charge du vendeur. Barème d’honoraires : voir le barème

35 m² - 2 pièces - 1 chambreÉtage 2/4
CaveAnnée de construction : 1830
Chauffage collectif au gaz (radiateurs)Digicode
Copropriété de 65 lots
Bilan énergétique Étiquette climat-énergie : E

Consommation d'énergie

Consommation
307 kWh/m².an
Logement très performantLogement extrêmement consommateur d'énergie

Émission de gaz à effet de serre

Peu d’émissions de CO2
A
B
C
D
E
F
G
66 kgeqCO2/m²/an
Émissions de CO2 très importante

Montant estimé des dépenses annuelles d’énergie pour un usage standard (année(s) de référence : 2021)
Minimum : 830 € / an
Maximum : 1 160 € / an

Diagnostics réalisés le 03/10/2025.

Intéressez par ce type de bien ?
Pour recevoir par email les annonces similaires
CRÉER UNE ALERTE
Localisation
DEMANDER L’ADRESSE
Cette annonce vous est proposée par :
76 avis clients
07 65 65 26 26 Appelez de la part de Superimmo.com

Vos informations sont transmises directement à l'agent afin qu’il traite votre demande.

Autres recherches

tous les appartements de 2 pièces à Paris 12ème