06 78 66 43 29 Appelez de la part de Superimmo.com

Vos informations sont transmises directement à l'agent afin qu’il traite votre demande.

Contacter par email
Description

Découvrez ce charmant appartement en cours de rénovation. idéalement situé au coeur du quartier de Wazemmes, rue des sarrazins, à proximité des commerces, transports et du célèbre marché.
Descriptif :
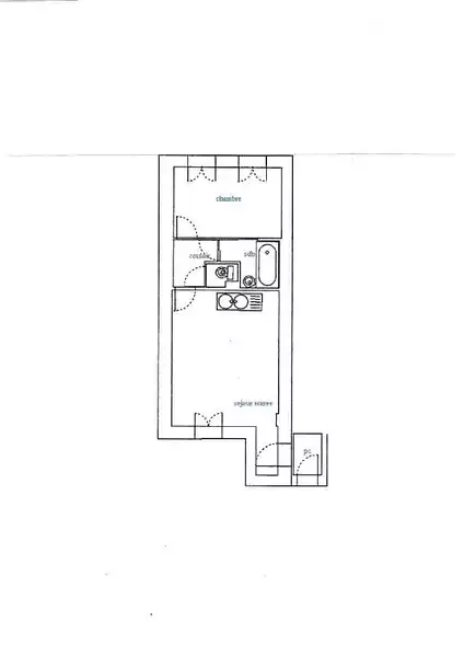
Pièce de vie parqueté offrant un bel espace de détente avec cuisine ouverte
Chambre séparée au calme
Salle de bains équipée d'une baignoire
WC indépendants
Petite cour attenante .
Appartement rénové avec goût, alliant charme et confort
Copropriété de 5 lots
Parfait pour premier achat ou investisseur.
Prix: 158 000 euros dont 8000 euros d'honoraires soit 150 000 euros net vendeur.
DPE: C GES: C
Montant estimé des dépenses annuelles d'énergie pour un usage standard entre 480 euros et 720 euros indexées au 1er janvier 2023
Pour visiter et vous accompagner dans votre projet, contactez Corinne DEFRANCE, au 0678664329 ou, par courriel à .
Selon l'article L.561.5 du Code Monétaire et Financier, pour l'organisation de la visite, la présentation d'une pièce d'identité vous sera demandée.
Cette présente annonce a été rédigée sous la responsabilité éditoriale de Corinne DEFRANCE agissant sous le statut d'agent commercial immatriculé au RSAC douai 822355244 auprès de SAS PROPRIETES PRIVEES, au capital de 44 920 euros, ZAC LE CHÊNE FERRÉ - 44 ALLÉE DES CINQ CONTINENTS 44120 VERTOU; SIRET 487 624 777 00040, RCS Nantes. Carte Professionnelle Transactions sur immeubles et fonds de commerce (T) et Gestion immobilière (G) n°CPI 4401 2016 000 010 388 délivrée par la CCI Nantes - Saint Nazaire. Compte séquestre n°30932508467 BPA SAINT-SEBASTIEN-SUR-LOIRE (44230). Garantie GALIAN-SMABTP - 89 rue de la Boétie, 75008 Paris - n°28137 J pour 2 000 000 euros pour T et 120 000 euros pour G. Assurance responsabilité civile professionnelle par GALIAN-SMABTP n° de police 28137.J
Mandat réf : 429 941 Le professionnel garantit et sécurise votre projet immobilier.
(5.33 % honoraires TTC à la charge de l'acquéreur.)
Copropriété de 6 lots - dont 6 lots habitation. ().
Charges annuelles : 200 euros.
Corinne DEFRANCE (EI) Agent Commercial - Numéro RSAC : douai 822355244 - .
Les informations sur les risques auxquels ce bien est exposé sont disponibles sur le site Géorisques : www. georisques. gouv. fr

Publiée le 21/11/2025 - Réf. agence : 429941CDEF - Réf Superimmo : ANVXZXHGW
Vous rencontrez un problème sur le site ?
Merci de nous signaler le problème
Caractérisques
Prix de vente : 158 000 €Prix au m² : 4 514 € / m²
Charges prévisionnelles : 200 € / an

Honoraires à la charge de l'acquéreur : 5,33% TTC - 8 000 € TTC inclus dans le prix de vente - Prix hors honoraires : 150 000 €. Barème d’honoraires : voir le barème

35 m² - 2 pièces - 1 chambreÉtage 1/3
Copropriété de 6 lots
Bilan énergétique Étiquette climat-énergie : C

Consommation d'énergie

Consommation
118 kWh/m².an
Logement très performantLogement extrêmement consommateur d'énergie

Émission de gaz à effet de serre

Peu d’émissions de CO2
A
B
C
D
E
F
G
21 kgeqCO2/m²/an
Émissions de CO2 très importante

Montant estimé des dépenses annuelles d’énergie pour un usage standard (année(s) de référence : 2023)
Minimum : 530 € / an
Maximum : 760 € / an

Diagnostics réalisés le 18/06/2022.

Intéressez par ce type de bien ?
Pour recevoir par email les annonces similaires
CRÉER UNE ALERTE
Localisation
DEMANDER L’ADRESSE
Cette annonce vous est proposée par :
06 78 66 43 29 Appelez de la part de Superimmo.com

Vos informations sont transmises directement à l'agent afin qu’il traite votre demande.

Autres recherches

tous les appartements de 2 pièces à Lille