07 86 20 95 45 Appelez de la part de Superimmo.com

Vos informations sont transmises directement à l'agence afin qu'elle traite votre demande. Voir notre charte des données personnelles.

Contacter par email
Description

Votre agence Mon Aide Immo Entre deux mers, vous propose ce nouveau bien à la vente.
Venez découvrir cette maison de ville de 120m² avec cour attenante.
PROJET DE RENOVATION
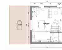
Cette maison de ville à rénover entièrement est composé d'un RDC de 60m2 et d'un étage à créer. Soit un potentiel de 120m2 environ avec ouverture pour porte et fenêtre déjà prévue. Toiture et charpente en bon état.
Bien vendu viabilisé avec coffret eau et électricité ainsi que le raccordement au tout à l'égout. Le tout complété par 2 places de parking.
Située sur la commune de Naujan et Postiac, en plein bourg, proche de toutes les commodités à pied , à 7mn de St Quentin de Baron, 15mn de Créon, 20mn de Fargues et 25 minutes de la rocade de Bordeaux.
Points forts :
Parc arboré privé
Viabilisation réalisé
Toiture et charpente OK
Commodités à pied ( épicerie, école, restaurant..)
Honoraires à la charge du vendeur. Non soumis au DPE. Les informations sur les risques auxquels ce bien est exposé sont disponibles sur le site Géorisques : georisques.gouv.fr.
Votre conseiller Mon Aide Immo : Hugo DURBISE
Agent commercial (Entreprise individuelle)
RSAC 933954414

Publiée le 05/06/2025 - maj le 24/10/2025 - Réf. agence : VA3298-MISSION - Réf Superimmo : ANVXYQ352
Vous rencontrez un problème sur le site ?
Merci de nous signaler le problème
Caractérisques
Prix de vente : 34 900 €Prix au m² : 291 € / m²

Honoraires à la charge du vendeur. Barème d’honoraires : voir le barème

120 m² - 4 pièces - 3 chambresRez-de-chaussée
Bilan énergétique
Non soumis au DPE
Intéressez par ce type de bien ?
Pour recevoir par email les annonces similaires
CRÉER UNE ALERTE
Localisation
DEMANDER L’ADRESSE
Cette annonce vous est proposée par :
07 86 20 95 45 Appelez de la part de Superimmo.com

Vos informations sont transmises directement à l'agence afin qu'elle traite votre demande. Voir notre charte des données personnelles.

Autres recherches

tous les appartements à rénover en Gironde - tous les appartements de 4 pièces en Gironde