06 22 28 88 42 Appelez de la part de Superimmo.com

Vos informations sont transmises directement à l'agent afin qu’il traite votre demande.

Contacter par email
Description

iad France - Fatiha El Idrissi vous propose: ___ AV DE PARIS,
___ QUARTIER RECHERCHÉ DU PARC DU RANCY,
Appartement de type F4 à rafraichir offrant un potentiel incroyable idéale pour les investisseurs ou les amateurs de rénovation....
comprenant :
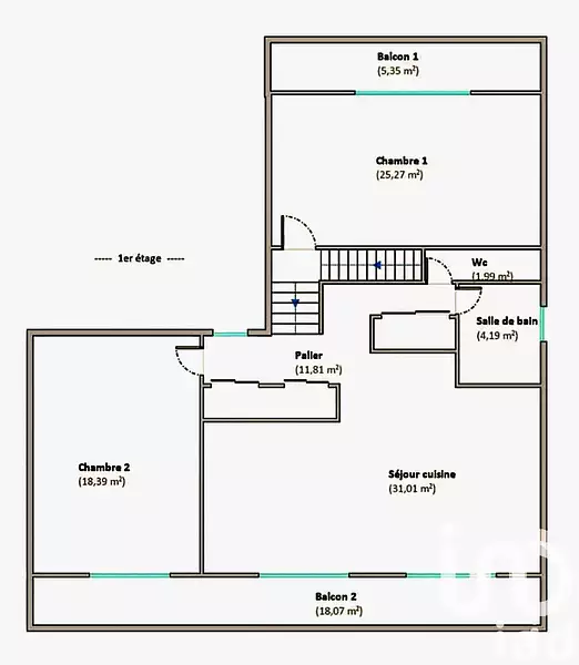
Au rez-de-chaussée : une entrée de 8m ²
A l'étage : un palier distribuant une 1ere chambre de 25m ² donnant sur balcon avec vue dégagée, une cuisine ouverte sur le séjour/salle a manger de 31m ² avec une terrasse de 18m ² SANS AUCUN VIS A VIS, une 2eme chambre de 18m ², un dégagement avec placards, une salle de bains avec fenêtre, et WC séparés.
___ PROCHE DE TOUTES COMMODITÉS, commerces, écoles, transports (métro L8 à 10min en bus ou 20min à pied).
___ Rafraichissement à prévoir.
___ EXPOSITION EST/OUEST.
___ DOUBLE VITRAGE.
___ CONSEILLER DISPONIBLE 7/7
La presente annonce immobiliere vise 1 lot situé dans une copropriété de 2 lots au total et ne faisant l'objet d'aucune procédure en cours citée à l'article L. 721-1 du code de la construction et de l'habitation. Montant moyen mensuel de charges déclaré par le vendeur : 0€ par mois (soit 0 € annuel). Honoraires d'agence à la charge du vendeur.
Information d'affichage énergétique sur ce bien : classe ENERGIE E indice 240 et classe CLIMAT E indice 52. Les informations sur les risques auxquels ce bien est exposé, y compris l'obligation légale de débroussaillement, sont disponibles sur le site Géorisques : http://www.georisques.gouv.fr.
La présente annonce immobilière a été rédigée sous la responsabilité éditoriale de Mme Fatiha El Idrissi mandataire indépendant en immobilier (sans détention de fonds), agent commercial de la SAS I@D France immatriculé au RSAC de CRETEIL sous le numéro 410 896 633, titulaire de la carte de démarchage immobilier pour le compte de la société I@D France SAS.

Publiée le 02/09/2025 - maj le 04/12/2025 - Réf. agence : 1832418 - Réf Superimmo : ANVXZDG9H
Vous rencontrez un problème sur le site ?
Merci de nous signaler le problème
Caractérisques
Prix de vente : 249 000 € Prix en baissePrix au m² : 2 465 € / m²

Honoraires à la charge du vendeur. Barème d’honoraires : voir le barème

101 m² - 4 pièces - 2 chambresDernier étage (1er)
1 balconTerrasse
Chauffage individuel au gazCopropriété de 2 lots
Bilan énergétique Étiquette climat-énergie : E

Consommation d'énergie

Consommation
240 kWh/m².an
Logement très performantLogement extrêmement consommateur d'énergie

Émission de gaz à effet de serre

Peu d’émissions de CO2
A
B
C
D
E
F
G
52 kgeqCO2/m²/an
Émissions de CO2 très importante

Montant estimé des dépenses annuelles d’énergie pour un usage standard (année(s) de référence : 2024)
Minimum : 2 150 € / an
Maximum : 2 950 € / an

Diagnostics réalisés le 28/06/2025.

Intéressez par ce type de bien ?
Pour recevoir par email les annonces similaires
CRÉER UNE ALERTE
Historique des prix
29 octobre 2025

Baisse de 10,8%

249 000 €
2 septembre 2025
279 000 €
Localisation
DEMANDER L’ADRESSE
Cette annonce vous est proposée par :
2 avis clients
06 22 28 88 42 Appelez de la part de Superimmo.com

Vos informations sont transmises directement à l'agent afin qu’il traite votre demande.

Autres recherches

tous les appartements de 4 pièces à Bonneuil-sur-Marne