Ventes immobilières en viager à Paris 16ème

Élargir à Paris 16ème (75016, 75116)
Modifier ma recherche
881 annonces
Coldwell Banker Paris
Annonce publiée le 27/09/2025 - mise à jour 09/10/2025
Proposée par Coldwell Banker Paris 27/09/2025 - mise à jour 09/10/2025
15
Appartement, 222,05 m²

4 450 000 € 20 041 €/m²
Appartement • 222,05 m² • 6 pièces • 4 chambres

Paris 16ème (75016)

Paris 75016 Proche des commerces et des écoles réputées, ce magnifique appartement ensoleillé, bordé de balcons, offre une élégance rare. Le spacieux séjour et la salle à manger, bordés de balcons ensoleillés, sont parfaits pour les réceptions. L'appartement comprend 3 chambres, un bureau et une grande cuisine équipée. Vivez l'élégance de la vie parisienne au cœur du 16ème arrondissement de Paris. Prix de vente : 4 450 000 € ( honoraires à la charge du vendeur) Nombre de lots principaux dans la copropriété : 39 lots principaux Charges annuelles : 7360 € Classe énergétique : E/E Montant des frais annuels d'énergie : entre 4530 € et 6180 € "Les informations sur les risques auxquels ce bien est exposé sont disponibles sur le site Géorisques : www. georisques.gouv.fr ”

Agent immobilier ?
Diffusez GRATUITEMENT toutes vos annonces sur Superimmo.com
Normann immobilier
Annonce publiée le 01/10/2025 - mise à jour 13/11/2025
Proposée par Normann immobilier 01/10/2025 - mise à jour 13/11/2025
6
Appartement, 40 m²

435 000 € 10 875 €/m²
Appartement • 40 m² • 2 pièces • 1 chambre

Paris 16ème (75016)

PARIS 16 - VILLAGE D'AUTEUIL - 2 PIECES - BALCON PARIS 16 - VILLAGE D'AUTEUIL Rare: Appartement 2 pièces d'une superficie de 36 m2 + Balcon 4 m2 plein sud situé dans un bel immeuble récent Cogedim datant de 2000 de haut standing, au 2éme étage avec ascenseur. Il se compose: d'un beau séjour donnant sur balcon, d'une cuisine séparée (possibilité américaine), d'une chambre avec salle de bains, d'un wc et rangements. Annexe: Une cave complète ce bien. Situation géographique exceptionnelle, en plein cœur du village d'Auteuil. Normann spécialiste de l'immobilier résidentiel est à votre disposition 7j/7. Normann IMMOBILIER 0145716040

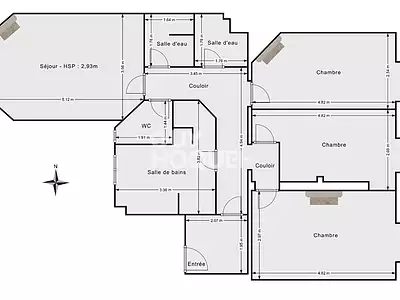
Consultants Immobilier - Monceau
Annonce publiée le 10/10/2025 - mise à jour 28/11/2025
Proposée par Consultants Immobilier - Monceau 10/10/2025 - mise à jour 28/11/2025
7
Appartement, 105 m²

Prix en baisse 465 000 € 4 429 €/m²
Appartement • 105 m² • Viager • 3 pièces • 2 chambres

Paris 16ème (75016)

VENTE EN VIAGER LIBRE - FEMME SEULE 76 ANS Rue du Docteur Blanche, Paris 16e - Proche métro Jasmin Au 2e étage par ascenseur d'une copropriété de standing, sécurisée et bien entretenue, appartement d'une superficie de 105m2, en très bon état général, traversant, lumineux et au calme absolu. Le bien comprend : une entrée, un séjour ouvrant sur un large balcon de 6m2, une cuisine entièrement équipée, une grande chambre, une deuxième chambre, deux salles de douche avec wc, une buanderie, une cave. Belle hauteur sous plafond. L'appartement est actuellement vide et vendu en viager libre : le bouquet est de 469.000 euros frais d'agence inclus + 2950 euros / mois de rente Rente actualisée annuellement selon d’indice en vigueur Crédirentier : femme seule de 76 ans Valeur vénale du bien : 1.150.000 euros Pour toute demande d'information, veuillez nous contacter au : 07 83 75 55 01

Marie VOVARD - iad
Annonce publiée le 27/10/2025 - mise à jour 26/11/2025
Proposée par Marie VOVARD - iad 27/10/2025 - mise à jour 26/11/2025
9
Appartement, 43 m²

Prix en baisse 420 000 € 9 767 €/m²
Appartement • 43 m² • 2 pièces • 1 chambre

Paris 16ème (75016)

iad France - Marie Vovard vous propose: Idéal pour professions libérales Bel appartement de 2 pièces situé dans un quartier recherché du 16ème arrondissement. Ce bien comprend un grand séjour, une cuisine ouverte aménagée et équipée, un WC séparé, une salle d'eau et une chambre. Une cave complète ce bien. A deux pas du métro Michel-Ange Auteuil et des commerces, marché etc.... A visiter sans tarder. La presente annonce immobiliere vise 2 lots situés dans une copropriété de 31 lots au total et ne faisant l'objet d'aucune procédure en cours citée à l'article L. 721-1 du code de la construction et de l'habitation. Montant moyen mensuel de charges déclaré par le vendeur : 133.33€ par mois (soit 1600 € annuel). Honoraires d'agence à la charge du vendeur. Information d'affichage énergétique sur ce bien : classe ENERGIE G indice 526 et classe CLIMAT C indice 17. Les informations sur les risques auxquels ce bien est exposé, y compris l'obligation légale de débroussaillement, sont disponibles sur le site Géorisques : http://www.georisques.gouv.fr. La présente annonce immobilière a été rédigée sous la responsabilité éditoriale de Mme Marie Vovard mandataire indépendant en immobilier (sans détention de fonds), agent commercial de la SAS I@D France immatriculé au RSAC de Pontoise sous le numéro 840290506, titulaire de la carte de démarchage immobilier pour le compte de la société I@D France SAS.

Jean-Charles SICARD - SAFTI
Annonce publiée le 24/11/2025
Proposée par Jean-Charles SICARD - SAFTI 24/11/2025
8
Appartement, 54 m²

549 500 € 10 176 €/m²
Appartement • 54 m² • 2 pièces • 1 chambre

Paris 16ème (75016)

Situé dans le secteur prisé d’Auteuil Sud, à quelques pas des commerces, des restaurants et du métro Exelmans, cet appartement profite d’un emplacement recherché au cœur du 16? arrondissement de Paris. Au 6? étage avec ascenseur d’un immeuble de bon standing, parfaitement entretenue et sécurisée grâce à la présence d’une gardienne, offre un cadre de vie paisible et soigné. D’une superficie de 53,53 m² (loi Carrez), l’appartement bénéficie d’une belle exposition Sud-Ouest, baignant les pièces de lumière tout au long de la journée. Son absence de vis-à-vis et sa vue totalement dégagée confèrent une atmosphère sereine et agréable. L’agencement se compose d’une entrée ouvrant sur un séjour spacieux et lumineux, d’une chambre confortable, d’un dégagement avec de grands rangements, d’une cuisine indépendante (avec possibilité d’ouverture sur le séjour), d’une salle de bain, ainsi que de toilettes séparées. Une cave complète ce bien. Possibilité d’acquérir une place de parking en sus. Le bien comprend 2 lots, et il est situé dans une copropriété de 84 lots (les charges courantes annuelles moyennes de copropriété sont de 3200 € et le syndicat des copropriétaires ne fait pas l'objet d'une procédure citée à l'article L. 721-1 du code de la construction et de l'habitation). Les informations sur les risques auxquels ce bien est exposé sont disponibles sur le site Géorisques : www.georisques.gouv.fr Prix de vente honoraires d'agence inclus : 549 500 € Prix de vente hors honoraires d'agence : 533 015 € Honoraires charge acquéreur : 16 485 € soit 3,09 % TTC de la valeur du bien hors honoraires Contactez votre conseiller SAFTI : Jean-Charles SICARD, Tél. : 07 64 62 69 21, E-mail : - EI - Agent commercial immatriculé au RSAC de PARIS sous le numéro 844 328 104 - SAFTI – SICARD Jean-Charles, Conseiller indépendant

Agence Immobilière La Tour CTII
Annonce publiée le 26/11/2025 - mise à jour 08/12/2025
Proposée par Agence Immobilière La Tour CTII 26/11/2025 - mise à jour 08/12/2025
6
Maison, 379 m²

5 900 000 € 15 567 €/m²
Maison • 379 m² • 8 pièces • 6 chambres • Ter. 380 m²

Paris 16ème (75016)

hotel particulier dans voie privée A vendre en EXCLUSIVITE - 16ème Nord A l'abri des regards dans une voie privée (à proximité de l'avenue Foch) sécurisée se trouve un hotel particulier de 380 m2 utiles édifié sur une parcelle de terrain de 360 m2, comprenant: En sous-sol en cour anglaise: Cuisine, chaufferie, buanderie, un ensemble de pièces de service, salle de bains et salle d'eau,accès direct par l'extérieur existant; En rez-de-chaussée: Entrée, petit salon de 30 m2, à la suite grand Salon (environ 52 m2) ouvrant sur le jardin, toilettes d'invités, office, salle à manger (20.50m2). Au 1er étage : 2 chambres de 18 m2 en suites, un salon donnant accès à une grande véranda laquelle donne accès à une terrasse en surplomb du jardin. Au 2ème étage 3 chambres (11, 18 et 25 m2) avec chacune une salle de bains ou salle d'eau. 2 emplacements voitures en façade de la parcelle dans la voie privée. A rénover entièrement. Prix 5.900.000EUR Honoraires acquéreur inclus.

WIP Immo
Annonce publiée le 29/11/2025 - mise à jour 03/12/2025
Proposée par WIP Immo 29/11/2025 - mise à jour 03/12/2025
5
Appartement, 29 m²

420 000 € 14 483 €/m²
Appartement • 29 m² • 2 pièces

Paris 16ème (75016)

JOLI T2 cosy Situé avenue de Malakoff, dans un bel immeuble haussmannien aux belles parties communes, au rez-de-chaussée donnant entièrement sur cour, un appartement de 2 pièces de 29m² avec terrasse de 18m² en jouissance exclusive. Refait à neuf, il se compose d'un séjour, d'une cuisine séparée, d'une chambre en-suite, d'une belle terrasse. Possibilité de rajouter 3m² à l'appartement (déjà acté). Une cave complète le bien. Contact: 07.88.57.98.18

WIP Immo
Annonce publiée le 29/11/2025 - mise à jour 03/12/2025
Proposée par WIP Immo 29/11/2025 - mise à jour 03/12/2025
8
Appartement, 154 m²

2 200 000 € 14 286 €/m²
Appartement • 154 m² • 5 pièces

Paris 16ème (75016)

BEL APPARTEMENT FAMILIAL Situé avenue de Malakoff, dans un bel immeuble haussmannien aux belles parties communes, au premier étage par ascenseur, un appartement familial refait à neuf de 154m² LC. Bénéficiant de beaux volumes, il se compose d'une galerie d'entrée, d'un double séjour avec salon et salle à manger, d'une cuisine dînatoire séparée, de trois belles chambres, d'une salle de bains complète avec douche et baignoire, d'une buanderie (possibilité de la changer en 2e salle de bains) et d'un WC séparé. Nombreux rangements. Possibilité de créer une 4ème chambre. Une grande cave saine complète ce bien d'exception. Pour tout renseignement contact: 07.88.57.98.18

EYLAU IMMOBILIER
Annonce publiée le 01/12/2025 - mise à jour 05/12/2025
Proposée par EYLAU IMMOBILIER 01/12/2025 - mise à jour 05/12/2025
19
Appartement, 84 m²

1 236 000 € 14 714 €/m²
Appartement • 84 m² • 4 pièces • 1 chambre

Paris 16ème (75016)

Dans un immeuble semi-récent (1953) de standing sécurisé avec gardien, situé au 3ème étage avec ascenseur, un appartement 3 pièces de prestige avec vue dégagée d'une superficie de 81,94m2 Loi Carrez comprenant une entrée avec coin bureau, un séjour avec balcon, une salle à manger, une cuisine indépendante, une chambre avec son dressing, une salle de bains et wc séparés. Une cave et un parking complètent ce bien. Parfait état, nombreux rangements, lumineux (exposition Sud)

Delphine De Labeau - iad
Annonce publiée le 01/12/2025
Proposée par Delphine De Labeau - iad 01/12/2025
18
Appartement, 127 m²

1 950 000 € 15 354 €/m²
Appartement • 127 m² • 5 pièces • 3 chambres

Paris 16ème (75016)

iad France - Delphine De Labeau vous propose: **Appartement de 5 pièces en dernier étage de 127 M² avec Balcon - Quartier FOCH-PERGOLESE** Au cOEur du prestigieux quartier de l'avenue Foch, ce magnifique appartement de 127m² (124.52 carrez) situé au 6ème étage avec ascenseur d'un immeuble haussmannien offre un cadre de vie exceptionnel. Rénové avec goût, cet appartement allie charme de l'ancien et confort moderne . Ce bien d'exception avec une vue dégagée se compose d'une entrée spacieuse avec toilettes invités, d'un double séjour lumineux prolongé d'un balcon filant de 18 m², d'une cuisine ouverte entièrement équipée, d' une suite parentale avec sa salle de bains et ses toilettes, de 2 autres chambres élégantes avec chacune leur salle de bains, d'une buanderie, de nombreux dressings, d'un cellier de 4 m² sur le palier et d'une cave de 7 m² en sous sol. Faibles charges. Gardien. Seul à l'étage. Copropriété bien entretenue. Cet appartement offre un cadre de vie rare à Paris, alliant confort et élégance. Il peut être vendu meublé. Proximité des commerces, métro, RER et TRAM et bois de Boulogne. La presente annonce immobiliere vise 4 lots situés dans une copropriété de 14 lots au total et ne faisant l'objet d'aucune procédure en cours citée à l'article L. 721-1 du code de la construction et de l'habitation. Montant moyen mensuel de charges déclaré par le vendeur : 675€ par mois (soit 8100 € annuel). Honoraires d'agence à la charge du vendeur. Information d'affichage énergétique sur ce bien : classe ENERGIE D indice 181 et classe CLIMAT D indice 31. Les informations sur les risques auxquels ce bien est exposé, y compris l'obligation légale de débroussaillement, sont disponibles sur le site Géorisques : http://www.georisques.gouv.fr. La présente annonce immobilière a été rédigée sous la responsabilité éditoriale de Mme Delphine De Labeau mandataire indépendant en immobilier (sans détention de fonds), agent commercial de la SAS I@D France immatriculé au RSAC de nanterre sous le numéro 808159412, titulaire de la carte de démarchage immobilier pour le compte de la société I@D France SAS.

BLG Patrimoine
Annonce publiée le 02/12/2025 - mise à jour 03/12/2025
Proposée par BLG Patrimoine 02/12/2025 - mise à jour 03/12/2025
13
Appartement, 85,01 m²

820 000 € 9 646 €/m²
Appartement • 85,01 m² • 1 chambre

Paris 16ème (75016)

Appartement Auteuil Sud Notre cabinet vous propose, au 4ème étage sur 8, un bel appartement de 3 pièces de 85m² carrez. L'appartement comprend une entrée avec placard, un séjour avec cuisine ouverte donnant sur un balcon offrant une vue dégagée et orientée plein Sud, un grand salon avec balcon, deux chambres dont une de 6m2, une salle d'eau avec WC et un WC séparé. L'appartement est divisible en deux 2 pièces de 37,69 m² et 47,31 m² Le bien dispose également de deux caves en sous-sol.

Dorothée DAVIS - Optimhome
Annonce publiée le 03/12/2025
Proposée par Dorothée DAVIS - Optimhome 03/12/2025
11
Appartement, 56 m²

460 000 € 8 214 €/m²
Appartement • 56 m² • 3 pièces • 1 chambre

Paris 16ème (75016)

PARIS 16ème - T3 DANS L'ÉLÉGANCE 1930 - LUMINEUX - CALME ABSOLU ET VUE JARDINET - POSSIBILITÉ 2ème CHAMBRE Imaginez la lumière naturelle inondant votre grand séjour, au sein d'une copropriété de grand standing de 1930, parfaitement sécurisée (gardien, interphone). Oubliez le bruit et découvrez le luxe d'un calme absolu et d'une luminosité optimale. Situé dans un secteur recherché (lignes 9/10), ce T3 de 56 m² se trouve au rez-de-chaussée. Les commerces de la rue Michel-Ange sont à deux pas. L'atout majeur est son double séjour de 27 m² orienté OUEST, jouissant d'une vue dégagée sur cour, sans aucun vis-à-vis. Rénové il y a 1 an et demi (huisseries, volets, salle d'eau), il bénéficie d'une belle hauteur sous plafond de 2,70 m et du charme du parquet. Il comprend une cuisine (5,42 m²) à rafraîchir. Le mur entre la cuisine et le séjour est non porteur, permettant d'envisager une magnifique pièce de vie ouverte, une chambre avec placard (12,88 m²), une salle d'eau et des WC séparés. C'est l'opportunité d'acquérir un bien lumineux et fonctionnel dans un secteur très prisé. Proche du Bois de Boulogne et des commerces, cette adresse permet également l'exercice d'une profession libérale. Une cave saine et un local à vélos complètent ce bien rare. Si vous privilégiez le calme, la lumière et le potentiel dans le 16ème, cet appartement est fait pour vous. Contactez-moi pour organiser votre visite. Nombre de lots de la copropriété: 212, Montant moyen de la quote-part annuelle de charges (budget prévisionnel) : 2232€ soit 186€ par mois. Les honoraires d'agence sont à la charge de l'acquéreur, soit 2,22% TTC du prix hors honoraires. Les informations sur les risques auxquels ce bien est exposé sont disponibles sur le site Géorisques : www. georisques. gouv. fr. Contactez Dorothée DAVIS Entrepreneur Individuel, Agent commercial OptimHome (RSAC N°853 974 350 Greffe de EVRY COURCOURONNES) 07 50 89 09 89 (réf. 597735 )

Marion DE FRANCOLINI - Capifrance
Annonce publiée le 03/12/2025
Proposée par Marion DE FRANCOLINI - Capifrance 03/12/2025
1
Appartement, 145 m²

2 240 000 € 15 448 €/m²
Appartement • 145 m² • 4 pièces • 3 chambres

Paris 16ème (75016)

Nichée au sein d'un immeuble des années 1960, entre le Trocadéro et l'Arc de Triomphe, cette adresse incarne le prestige parisien mêlé au confort moderne. Sur l'Avenue Kléber, dans l'un des quartiers les plus recherchés du 16ᵉ arrondissement, vous découvrirez cet appartement moderne et lumineux de 145 m² avec balcon, alliant confort et prestations contemporaines de qualité. Dès l'entrée, vous êtes accueilli par un espace généreux et baigné de lumière, grâce aux baies vitrées qui illuminent chaque pièce. Le séjour spacieux s'ouvre sur un balcon, parfait pour profiter de l'extérieur en temps ensoleillé. La partie nuit se compose de trois chambres, toutes lumineuses, avec la possibilité de créer une quatrième chambre selon vos besoins. La cuisine indépendante, aménagée et équipée, offre un espace fonctionnel pour vos préparations quotidiennes. L'appartement dispose également d'une salle de bain, d'une salle d'eau, ainsi que d'un sanitaire avec WC. Une cave complète ce bien, et la proximité d'un parking en supplément constitue un atout rare à cette adresse. La station Boissière (métro ligne 6) se trouve à environ 2‑3 minutes à pied, tandis que les stations Victor Hugo (ligne 2) et Iéna (ligne 9) sont également accessibles en moins de 5–6 minutes. De nombreuses lignes de bus (22, 30, 82…) desservent également l'avenue, complétant le réseau et assurant une excellente mobilité. Un appartement où l'espace, la lumière et le confort moderne se rencontrent, offrant un cadre de vie élégant et agréable au cœur de l'une des avenues les plus emblématiques de Paris. Nombre de lots de la copropriété : 25, Montant moyen annuel de la quote-part de charges (budget prévisionnel) : 7232€ soit 602€ par mois. Les honoraires d'agence sont à la charge de l'acquéreur, soit 4,67% TTC du prix hors honoraires. Les informations sur les risques auxquels ce bien est exposé sont disponibles sur le site Géorisques : www. georisques. gouv. fr. Réseau Immobilier CAPIFRANCE - Votre agent commercial (RSAC N°918 747 510 - Greffe de CRETEIL) Marion DE FRANCOLINI Entrepreneur Individuel 07 60 81 80 20 - Réf.932389

Guy Hoquet Paris 16 Muette
Annonce publiée le 04/12/2025
Proposée par Guy Hoquet Paris 16 Muette 04/12/2025
9
Appartement, 83 m²

899 000 € 10 831 €/m²
Appartement • 83 m² • 4 pièces • 3 chambres

Paris 16ème (75016)

En plein coeur de Passy , rue Raynouard, Chernovitz Appartement de 83 m2 dans un immeuble de standing de 1928 avec gardien à deux pas de la rue de Passy, ravalé récemment, à moins de 2 minutes à pied du métro Passy. Cet appartement offre des prestations haut de gamme, parquet, moulures, cheminées ainsi que de belles possibilités d'aménagement en fonction du besoin. Organisé aujourd'hui en trois chambres il est possible d'augmenter la surface du séjour et de garder 2 belles chambres. Deux salles d'eau et WC indépendants. Travaux nécessaires. Copropriété de 24 lots. Charges annuelles : 3600.00 euros. DPE : E (3.04 % honoraires TTC à la charge de l'acquéreur.) Copropriété de 60 lots - dont 34 lots habitation. (Pas de procédure en cours). Charges annuelles : 3600 euros.

Guy Hoquet Paris 16 Muette
Annonce publiée le 04/12/2025 - mise à jour 06/12/2025
Proposée par Guy Hoquet Paris 16 Muette 04/12/2025 - mise à jour 06/12/2025
3
Appartement, 74,3 m²

795 000 € 10 700 €/m²
Appartement • 74,3 m² • 3 pièces • 2 chambres

Paris 16ème (75016)

Guy Hoquet Prestige vous propose un superbe bien idéalement situé au calme proche de tous commerces de la rue du Docteur Blanche. Le bien comporte une belle entrée, un double séjour au calme sur square typique des années 30, une cuisine indépendante, une grande chambre, (possibilité 2 ch), une salle de douche avec des toilettes. Le bien est proposé avec une cave. Une place de parking en sus est proposée au prix de 45 000 euros FAI. L'immeuble de 1933 est situé proche du métro Jasmin ligne 9 et dispose d'un gardien permanent. A voir très rapidement. NB photos non contractuelles Ch mensuelles 440 euros TF : 1857 euros Photos sur demande Copropriété de 91 lots (Pas de procédure en cours). Charges annuelles : 5280 euros.