Ventes immobilières 2 pièces à Draveil (91210)

Modifier ma recherche
20 annonces
Aurélien Rondelet - iad
Annonce publiée le 18/11/2025 - mise à jour 28/11/2025
Proposée par Aurélien Rondelet - iad 18/11/2025 - mise à jour 28/11/2025
9
Appartement, 37 m²

149 000 € 4 027 €/m²
Appartement • 37 m² • 2 pièces • 1 chambre

Draveil (91210)

iad France - Aurélien Rondelet vous propose: En exclusivité Appartement 2 pièces au centre-ville de Draveil. Situé au 5ᵉ et dernier étage d’un immeuble sans ascenseur, cet appartement 2 pièces offre un cadre de vie agréable en plein cOEur du centre-ville. Il se compose d’une entrée, d’un séjour lumineux, d’une cuisine aménagée et équipée avec accès direct au balcon bénéficiant d’une vue dégagée, d’un WC séparé et d’une chambre. Une cave vient compléter ce bien. Les charges sont de 170 € par mois et comprennent le chauffage, l’eau froide et l’entretien des parties communes. La taxe foncière est de 681 €. Son emplacement privilégié permet un accès immédiat aux commerces, transports et services. Un bien rare sur le secteur, à visiter rapidement. La presente annonce immobiliere vise 2 lots situés dans une copropriété de 135 lots au total et ne faisant l'objet d'aucune procédure en cours citée à l'article L. 721-1 du code de la construction et de l'habitation. Montant moyen mensuel de charges déclaré par le vendeur : 170€ par mois (soit 2040 € annuel). Honoraires d'agence à la charge du vendeur. Information d'affichage énergétique sur ce bien : classe ENERGIE E indice 296 et classe CLIMAT D indice 43. Les informations sur les risques auxquels ce bien est exposé, y compris l'obligation légale de débroussaillement, sont disponibles sur le site Géorisques : http://www.georisques.gouv.fr. La présente annonce immobilière a été rédigée sous la responsabilité éditoriale de M Aurélien Rondelet mandataire indépendant en immobilier (sans détention de fonds), agent commercial de la SAS I@D France immatriculé au RSAC de Evry sous le numéro 803381813, titulaire de la carte de démarchage immobilier pour le compte de la société I@D France SAS.

Agent immobilier ?
Diffusez GRATUITEMENT toutes vos annonces sur Superimmo.com
Philippe COLLIN - Capifrance
Annonce publiée le 22/05/2025 - mise à jour 04/11/2025
Proposée par Philippe COLLIN - Capifrance 22/05/2025 - mise à jour 04/11/2025
11
Appartement, 44 m²

Prix en baisse 149 000 € 3 386 €/m²
Appartement • 44 m² • 2 pièces • 1 chambre

Draveil (91210)

Philippe Collin vous présente : Situé dans un secteur recherché de Draveil, à proximité immédiate du parc du Port aux Cerises, cet appartement de 2 pièces (44m2) est une belle opportunité pour les amateurs de praticité au quotidien... et de balades dans le parc ! Installé au 2e étage d'une résidence récente et bien entretenue, il offre un cadre de vie à la fois paisible et connecté aux commodités (transports, commerces, écoles). L'appartement se compose d'un séjour lumineux (exposé sud-est), ouvert sur une agréable loggia – parfaite pour disposer d'un espace de rangement supplémentaire. La cuisine ouverte, fonctionnelle et bien pensée, est complétée par un cellier pouvant servir de buanderie. Côté nuit, vous trouverez une chambre confortable avec placard (et accès à la loggia), une salle d'eau attenante (douche et lavabo) et des WC indépendants. En résumé : + Pas de travaux à prévoir + Volets roulants électriques dans le séjour (manuels dans la chambre) + Chauffage électrique individuel avec convecteurs récents + Porte d'entrée blindée 5 points + Place de parking extérieure incluse Emplacement privilégié à 5 minutes à pied du Port aux Cerises – parc de 175 hectares avec lac, base nautique, activités sportives et espaces naturels. Nombre de lots de la copropriété : 10, Montant moyen annuel de la quote-part de charges (budget prévisionnel) : 1400€ soit 116€ par mois. Les honoraires sont à la charge du vendeur. Les informations sur les risques auxquels ce bien est exposé sont disponibles sur le site Géorisques : www. georisques. gouv. fr. Réseau Immobilier CAPIFRANCE - Votre agent commercial (RSAC N°831 659 719 - Greffe de EVRY) Philippe COLLIN Entrepreneur Individuel 06 62 84 36 99 - Réf.907450

Agence Optimmo
Annonce publiée le 29/05/2025
Proposée par Agence Optimmo 29/05/2025
1
Appartement, 37 m²

225 000 € 6 081 €/m²
Appartement • 37 m² • 2 pièces • 1 chambre

Draveil (91210)

Découvrez cet appartement NEUF à vendre à Draveil, LIVRAISON OCTOBRE 2025, idéalement situé à proximité de toutes commodités et de la Forêt. Construit en 2025, cet appartement moderne de 37,6 m² avec une terrasse, offre un espace de vie optimisé et lumineux. Cet appartement 2 pièces idéalement placé, est PARFAIT pour une vie citadine pratique et agréable. Emplacement de stationnement pour véhicule. Avec une condition impeccable, ce bien est prêt à accueillir ses nouveaux propriétaires sans aucun travaux à prévoir. Situé dans un quartier paisible et verdoyant, vous profiterez d'un cadre de vie agréable tout en restant proche des commerces et des transports. Proposé au prix attractif de 225 000 EUR, cet appartement représente une opportunité exceptionnelle pour un premier achat ou un investissement locatif. Ne manquez pas cette occasion unique d'acquérir un bien immobilier de qualité à Draveil. Contactez-nous dès maintenant pour plus d'informations ou pour organiser une visite. Référence agence : 779

L'Adresse Morsang Sur Orge
Annonce publiée le 08/04/2025 - mise à jour 15/10/2025
Proposée par L'Adresse Morsang Sur Orge 08/04/2025 - mise à jour 15/10/2025
3
Appartement, 28,17 m²

113 000 € 4 011 €/m²
Appartement • 28,17 m² • 2 pièces • 1 chambre

Draveil (91210)

Investissez dans un bien de qualité, à deux pas de tout ! L'agence l'Adresse MORSANG-SUR-ORGE vous propose en "Exclusivité", dans le quartier Villa, au deuxième étage d'une petite copropriété, ce charmant appartement de 28 m². Idéalement situé à proximité du centre-ville de Draveil, de la gare de JUVISY (RER C et D), et de la base de loisirs du Port aux Cerises, ce bien bénéficie d'un cadre de vie agréable et pratique, parfait pour un premier achat ou un investissement locatif. L'appartement se compose d'une entrée, d'une spacieuse pièce de vie ouverte sur la cuisine, ainsi que d'une salle de bains avec WC. Ce bien lumineux et bien agencé saura répondre à vos besoins, que ce soit pour y habiter ou pour le mettre en location. Les atouts supplémentaires de cet appartement : Une place de parking privative pour faciliter le stationnement, Une cave pour plus de stockage, Un grenier de 20 m² au sol qui peut être aménagé et loué séparément, offrant un potentiel locatif supplémentaire. L'emplacement stratégique à quelques minutes à pied de la gare de JUVISY (RER C et D) permet un accès rapide à Paris et aux environs, tandis que la base de loisirs du Port aux Cerises offre un espace de détente en plein air. Un véritable plus pour les locataires ou les propriétaires en quête d'un cadre de vie agréable. Idéal pour un premier achat ou un investisseur, ce bien représente une réelle opportunité dans un secteur dynamique avec un fort potentiel locatif. Ne manquez pas cette chance, contactez-nous dès maintenant pour organiser une visite et découvrir ce bien rare ! Copropriété de 47 lots - dont 12 lots habitation. (Pas de procédure en cours). Charges annuelles : 1972 euros.

Agence De La Mairie
Annonce publiée le 12/04/2025 - mise à jour 14/11/2025
Proposée par Agence De La Mairie 12/04/2025 - mise à jour 14/11/2025
6
Appartement, 54,99 m²

174 900 € 3 181 €/m²
Appartement • 54,99 m² • 2 pièces • 1 chambre

Draveil (91210)

Dans un pavillon divisé en 2 appartements au sein d'une petite copropriété, un 2 pièces de 54,99 m2 en DUPLEX composé ainsi : Au premier étage une belle entrée avec placard, une grande pièce à vivre ouverte sur une cuisine aménagée, chambre, salle d'eau avec WC. Remise de 19 m2 environ, 2 places de stationnement extérieures, jardin de 90 m2 environ. Ce bien est VENDU LOUÉ.

Agence du Centre
Annonce publiée le 04/11/2025
Proposée par Agence du Centre 04/11/2025
3
Appartement, 39 m²

225 000 € 5 769 €/m²
Appartement • 39 m² • 2 pièces • 1 chambre

Draveil (91210)

Au sein d'une petite copropriété (9 appartements) située face à la base de loisir du Port aux Cerises de Draveil où vous pourrez profiter des multiples activités en plein air (accrobranche, base nautique, mini golf, équitation, laser tag, espaces verts, etc...), ce très bel appartement vendu sur plan vous offre également la proximité de la gare RER C et D de Juvisy Sur Orge (500m), permettant ainsi de rejoindre Paris en moins de 1/4h. Il dispose d'une chambre spacieuse et d'un vaste séjour. Un stationnement complète également ce bien. Alors n'hésitez plus et contactez notre agence de Juvisy. Référence agence : 376

Guy Hoquet Juvisy Sur Orge
Annonce publiée le 03/12/2025 - mise à jour 04/12/2025
Proposée par Guy Hoquet Juvisy Sur Orge 03/12/2025 - mise à jour 04/12/2025
6
Maison, 49 m²

205 000 € 4 184 €/m²
Maison • 49 m² • 2 pièces • 1 chambre • Ter. 388 m²

Draveil (91210)

Située à 7 min à pied du centre ville de DRAVEIL, découvrez cette maison de plain-pied à vendre dans le quartier de la plaine des sables, d'une superficie de 49 m² sur un terrain de 388m2. Garage attenant. Ce bien est à rénover entièrement. Localisée à seulement 2 minutes à pied des arrêts de bus, cette maison bénéficie d'un accès facile aux transports en commun. A proximité, vous trouverez plusieurs établissements scolaires tels que l'École élémentaire Jean Jaurès, le Collège Alphonse Daudet, ainsi que l'École maternelle et l'École Élémentaire Le Parc de Villiers, parfaits pour les familles. De plus, le quartier offre divers services et commodités, incluant des supermarchés, des boulangeries, des pharmacies, et des restaurants, facilitant ainsi votre quotidien. Cette propriété est proposée par l'agence Guy Hoquet JUVISY-SUR-ORGE. Ne manquez pas cette opportunité de devenir propriétaire dans un cadre agréable et pratique.

Agence du Centre
Annonce publiée le 04/11/2025
Proposée par Agence du Centre 04/11/2025
3
Appartement, 48 m²

260 000 € 5 417 €/m²
Appartement • 48 m² • 2 pièces • 1 chambre

Draveil (91210)

Au sein d'une petite copropriété (9 appartements) située face à la base de loisir du Port aux Cerises de Draveil où vous pourrez profiter des multiples activités en plein air (accrobranche, base nautique, mini golf, équitation, laser tag, espaces verts, etc...), ce très bel appartement vendu sur plan vous offre également la proximité de la gare RER C et D de Juvisy Sur Orge (500m), permettant ainsi de rejoindre Paris en moins de 1/4h. Très lumineux, il dispose d'une chambre spacieuse et d'un vaste séjour avec un extérieur de près de 11m² exposé plein Sud. Un stationnement complète également ce bien. Alors n'hésitez plus et contactez notre agence de Juvisy. Référence agence : 376

Les ruches immo et conseils
Annonce publiée le 08/10/2025 - mise à jour 09/12/2025
Proposée par Les ruches immo et conseils 08/10/2025 - mise à jour 09/12/2025
4
Appartement, 36,1 m²

180 000 € 4 986 €/m²
Appartement • 36,1 m² • 2 pièces • 1 chambre

Draveil (91210)

Découvrez ce charmant appartement de 36,10 m², niché dans un cadre de vie paisible et idéal pour les jeunes actifs ou les couples. Cet appartement de 2 pièces, comprenant une chambre spacieuse et une salle de bains moderne, est parfait pour ceux qui recherchent un équilibre entre confort et praticité. Imaginez-vous commencer votre journée sur votre balcon de 2 m², baigné de soleil, avant de vous rendre à votre travail en quelques minutes grâce au bus situé à seulement 5 minutes à pied. Le soir, profitez d'un dîner dans l'un des restaurants à proximité, à 5 minutes à pied, ou détendez-vous dans l'un des parcs et jardins accessibles en 5 minutes en voiture. Cet appartement élégant est également idéal pour les familles avec de jeunes enfants, avec une crèche, une maternelle et une école élémentaire toutes accessibles en 10 minutes à pied. Vous trouverez également plusieurs commerces d'alimentation générale à 10 minutes à pied, ainsi qu'un médecin généraliste à 5 minutes à pied. Ne manquez pas cette opportunité de vivre dans un appartement bien équipé, éligible à l'internet haut débit et à la fibre, offrant tout le confort moderne dans un cadre de vie agréable.

Agence Optimmo
Annonce publiée le 29/05/2025
Proposée par Agence Optimmo 29/05/2025
1
Appartement, 38 m²

215 000 € 5 658 €/m²
Appartement • 38 m² • 2 pièces • 1 chambre

Draveil (91210)

Découvrez cet appartement NEUF à vendre à Draveil, LIVRAISON OCTOBRE 2025, idéalement situé à proximité de toutes commodités et de la Forêt. Construit en 2025, cet appartement moderne de 38,2 m² offre un espace de vie optimisé et lumineux. Cet appartement de 2 pièces idéalement placé, est PARFAIT pour une vie citadine pratique et agréable. Avec une condition impeccable, ce bien est prêt à accueillir ses nouveaux propriétaires sans aucun travaux à prévoir. Situé dans un quartier paisible et verdoyant, vous profiterez d'un cadre de vie agréable tout en restant proche des commerces et des transports. Proposé au prix attractif de 215 000 EUR, cet appartement représente une opportunité exceptionnelle pour un premier achat ou un investissement locatif. Ne manquez pas cette occasion unique d'acquérir un bien immobilier de qualité à Draveil. Contactez-nous dès maintenant pour plus d'informations ou pour organiser une visite. Référence agence : 779

Anne Jacquemet - iad
Annonce publiée le 18/07/2025 - mise à jour 21/10/2025
Proposée par Anne Jacquemet - iad 18/07/2025 - mise à jour 21/10/2025
9
Appartement, 42 m²

Prix en baisse 230 000 € 5 476 €/m²
Appartement • 42 m² • 2 pièces • 1 chambre

Draveil (91210)

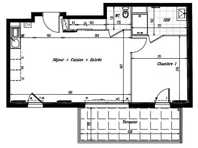
iad France - Anne Jacquemet vous propose: Appartement T2 avec grande terrasse plein sud – Draveil À Draveil, à proximité immédiate du Parc du Port aux Cerises et à seulement 1 km de la gare, découvrez ce charmant appartement 2 pièces de 42 m², situé au 2ᵉ étage d’une résidence récente et sécurisée de 2014. Il se compose d’un séjour lumineux de 21 m² ouvrant sur une spacieuse terrasse de 15 m² orientée plein sud, idéale pour profiter du soleil et des repas en extérieur. Vous y trouverez également une chambre confortable, une cuisine ouverte et fonctionnelle, ainsi qu’une salle de bain avec WC. L’appartement dispose d’une place de parking sécurisée, avec la possibilité d’en acquérir une seconde en sus. La résidence est équipée d’un ascenseur et d’un accès PMR, garantissant un confort au quotidien. Le chauffage collectif au gaz naturel assure une chaleur agréable toute l’année. Situé dans un quartier recherché de Draveil, à proximité des commerces, écoles et transports, cet appartement offre un cadre de vie paisible à deux pas de la nature grâce au Parc du Port aux Cerises. Cet appartement est idéal pour un premier achat ou un investissement locatif sûr et rentable, dans un environnement dynamique et verdoyant.

Agence Optimmo
Annonce publiée le 29/05/2025
Proposée par Agence Optimmo 29/05/2025
1
Appartement, 36 m²

209 990 € 5 833 €/m²
Appartement • 36 m² • 2 pièces • 1 chambre

Draveil (91210)

Découvrez cet appartement NEUF à vendre à Draveil, LIVRAISON OCTOBRE 2025, idéalement situé à proximité de toutes commodités et de la Forêt. Construit en 2025, cet appartement moderne de 36,1 m² offre un espace de vie optimisé et lumineux. Cet appartement 2 pièces idéalement placé, est PARFAIT pour une vie citadine pratique et agréable. Emplacement de stationnement pour véhicule. Avec une condition impeccable, ce bien est prêt à accueillir ses nouveaux propriétaires sans aucun travaux à prévoir. Situé dans un quartier paisible et verdoyant, vous profiterez d'un cadre de vie agréable tout en restant proche des commerces et des transports. Proposé au prix attractif de 209 990 EUR, cet appartement représente une opportunité exceptionnelle pour un premier achat ou un investissement locatif. Ne manquez pas cette occasion unique d'acquérir un bien immobilier de qualité à Draveil. Contactez-nous dès maintenant pour plus d'informations ou pour organiser une visite. Référence agence : 779

Agence Optimmo
Annonce publiée le 29/05/2025
Proposée par Agence Optimmo 29/05/2025
1
Appartement, 41 m²

230 000 € 5 610 €/m²
Appartement • 41 m² • 2 pièces • 1 chambre

Draveil (91210)

Découvrez cet appartement NEUF à vendre à Draveil, LIVRAISON OCTOBRE 2025, idéalement situé à proximité de toutes commodités et de la Forêt. Construit en 2025, cet appartement moderne de 41,1 m² avec balcon, offre un espace de vie optimisé et lumineux. Cet appartement 2 pièces idéalement placé, est PARFAIT pour une vie citadine pratique et agréable. Emplacement de stationnement pour véhicule. Avec une condition impeccable, ce bien est prêt à accueillir ses nouveaux propriétaires sans aucun travaux à prévoir. Situé dans un quartier paisible et verdoyant, vous profiterez d'un cadre de vie agréable tout en restant proche des commerces et des transports. Proposé au prix attractif de 230 000 EUR, cet appartement représente une opportunité exceptionnelle pour un premier achat ou un investissement locatif. Ne manquez pas cette occasion unique d'acquérir un bien immobilier de qualité à Draveil. Contactez-nous dès maintenant pour plus d'informations ou pour organiser une visite. Référence agence : 779

Agence Optimmo
Annonce publiée le 29/05/2025
Proposée par Agence Optimmo 29/05/2025
1
Appartement, 36 m²

215 000 € 5 972 €/m²
Appartement • 36 m² • 2 pièces • 1 chambre

Draveil (91210)

Découvrez cet appartement NEUF à vendre à Draveil, LIVRAISON OCTOBRE 2025, idéalement situé à proximité de toutes commodités et de la Forêt. Construit en 2025, cet appartement moderne de 36,1 m² offre un espace de vie optimisé et lumineux. Cet appartement 2 pièces idéalement placé, est PARFAIT pour une vie citadine pratique et agréable. Emplacement de stationnement pour véhicule. Avec une condition impeccable, ce bien est prêt à accueillir ses nouveaux propriétaires sans aucun travaux à prévoir. Situé dans un quartier paisible et verdoyant, vous profiterez d'un cadre de vie agréable tout en restant proche des commerces et des transports. Proposé au prix attractif de 215 000 EUR, cet appartement représente une opportunité exceptionnelle pour un premier achat ou un investissement locatif. Ne manquez pas cette occasion unique d'acquérir un bien immobilier de qualité à Draveil. Contactez-nous dès maintenant pour plus d'informations ou pour organiser une visite. Référence agence : 779

Agence Optimmo
Annonce publiée le 29/05/2025
Proposée par Agence Optimmo 29/05/2025
1
Appartement, 38 m²

215 000 € 5 658 €/m²
Appartement • 38 m² • 2 pièces • 1 chambre

Draveil (91210)

Découvrez cet appartement NEUF à vendre à Draveil, LIVRAISON OCTOBRE 2025, idéalement situé à proximité de toutes commodités et de la Forêt. Construit en 2025, cet appartement moderne de 38,2 m² offre un espace de vie optimisé et lumineux. Cet appartement de 2 pièces idéalement placé, est PARFAIT pour une vie citadine pratique et agréable. Emplacement de stationnement pour véhicule. Avec une condition impeccable, ce bien est prêt à accueillir ses nouveaux propriétaires sans aucun travaux à prévoir. Situé dans un quartier paisible et verdoyant, vous profiterez d'un cadre de vie agréable tout en restant proche des commerces et des transports. Proposé au prix attractif de 215 000 EUR, cet appartement représente une opportunité exceptionnelle pour un premier achat ou un investissement locatif. Ne manquez pas cette occasion unique d'acquérir un bien immobilier de qualité à Draveil. Contactez-nous dès maintenant pour plus d'informations ou pour organiser une visite. Référence agence : 779